Construction neuve BBC
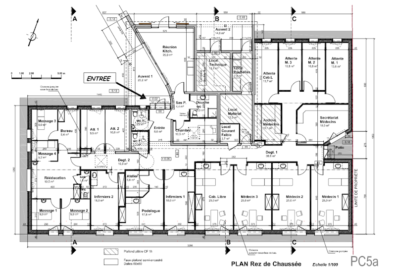
Programme complet de maison pluridisciplinaire de santé prévue pour 4 médecins, 4 infirmières, 2 kinésithérapeutes et 1 podologue, y compris les locaux communs, une salle de réunion et une chambre de garde.
Performance thermique visée : Niveau B.B.C. (Bâtiment Basse Consommation).
Ossature bois, isolation renforcée, chauffage par P.A.C. (Pompe À Chaleur), ventilation double flux, performances acoustiques internes, accessibilité complète aux personnes à mobilité réduite...







